 |
 |
 |
ECO
|

|
|
|
SETRONIC Verona, präsentiert mit dem ECO System eine neue Innovation. ECO ist ein sehr kompakter Melder, der eine optimale Lösung auch bei Installationsproblemen in architektonisch anspruchsvollen Gebäuden, Kirchen, Museen, Konferenzhallen und Arbeitsbereichen darstellt.
Durch den Einsatz einer neuen Microprozessor- Technologie garantiert ECO herausragende SETRONIC typische Detektionseigenschaften und die vollständige Erfüllung der Anforderungen nach EN54- 12 gultig in europa von 2005.
ECO ist ein neuer Durchlicht Rauchmelder der in jeder sinnvollen Anordnung eine schnellere und zuverlässigere Branderkennung ermöglicht und damit unter allen denkbaren Umgebungsbedingungen die größtmögliche Sicherheit garantiert.
ECO wurde entwickelt, umdie zukünftigen Anforderungen, wie Produktnorm, Ökologie Umweltvorschriften zu erfüllen.
|
|
|

|
|
|
ECO ist ein Durchlicht- Rauchmelder mit den folgenden Mekmalen:
|
|
|
 |
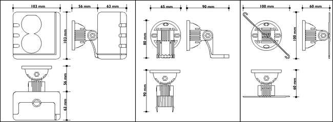
Sehr kleine Bauform |
 |
Ideal für Gebäude mit künstlerischem Anspruch |
 |
Innovatives Design |
 |
Multifunktionale Eigenschaften: Arbeitet als Reflektor oder als Sender Empfänger System |
 |
Lieferbar als Standart- oder Wand- Einbauversion |
 |
Einfache Installation mit neuentwickeltem drehbaren Haltebügel |
 |
Stromversorgung: Spannungsbereich von 12 bis 24 Volt |
 |
Geringe Stromaufnahme unter allen Arbeitsbedingungen |
 |
Integriertes Interface |
 |
Breite des Überwachungsbereichs: 15m (EN 54/ 14), 12m/ 13m (VDS) |
 |
Auch vertikale Überwachungsstrecken sind möglich |
 |
Erfüllt alle Umweltschutzvorschriften |
|
|
|

|
|
|

|
|
|
Technische Daten - ECO - Model: ES 50 ; ES 25-1
|
|
|
|
Stromversorgung
|
@12V +/- 20%
|
|
@24V +/- 20%
|
|
|
Bereichseinstellung mit Schalter S1
|
TX LO
|
TX HI
|
TX LO
|
TX HI
|
|
normaler Betrieb
|
35 mA
|
79 mA
|
19 mA
|
39 mA
|
|
Alarm
|
62 mA
|
95 mA
|
32 mA
|
52 mA
|
|
Überwachungslänge
|
min. 2m
|
|
max. 50m (25m ES 25-1)
|
|
|
|
|
Maximale Überwachungslänge: (375 qm) 15m x 25m in LO, (750 qm) 15m x 50m in HI
|
|
|
Technische Daten - ECO - Model: ES 100
|
|
|
|
Stromversorgung
|
@12V +/- 20%
|
|
@24V +/- 20%
|
|
|
Bereichseinstellung mit Schalter S1
|
TX LO
|
TX HI
|
TX LO
|
TX HI
|
|
normaler Betrieb
|
45 mA
|
87 mA
|
26 mA
|
47 mA
|
|
Alarm
|
70 mA
|
105 mA
|
38 mA
|
60 mA
|
|
Überwachungslänge
|
min. 2m
|
|
max. 100m
|
|
|
|
|
Maximale Überwachungslänge: (750 qm) 15m x 50m in LO, (1500 qm) 15m x 100m in HI
|
|
|

|
|
|
Im Rahmen einer kontinuierlichen Verbesserung unserer Produkte sei darauf hingewiesen, dass Setronic Verona sich das Recht vorbehält, zujeder Zeit alle für notwendig befundenen Änderungen ohne Vorankündigungspflicht vorzunehmen. Das gleiche Recht gilt für die Korrektur voneventuellen Druckfehlern, fehlerhaften Daten und Angaben, die irrtümlicherweise in der vorliegenden Beschreibung vorhanden sind.
|
|
|
|
Max Belastung Relais Kontakt
|
Relais Alarm 1A, 30V; Störung Optokoppler: 170mA, 30
|
|
Maximale Kabellänge @24 V
|
1000m mit 0,8qmm
|
|
Maximale Kabellänge @12 V
|
500m mit 0,8qmm
|
|
Arbeitstemperaturbereich
|
-20° C ÷+ 55° C
|
|
Lagertemperaturbereich
|
-25° C ÷+ 70° C
|
|
Huberwachtungsbreite max.
|
15m (EN54/ 14)
|
|
Relative Luftfeuchte
|
95%
|
|
Schutzklasse
|
IP 44
|
|
Material
|
ABS
|
|
Farbe
|
Weisse RAL~ 1013
|
|
|
andere RAL-Farben auf Anfrage
|
|
|
|
(C) 2005 - Alle Rechte vorbehalten |
|
Diese Seite drucken
|